S009
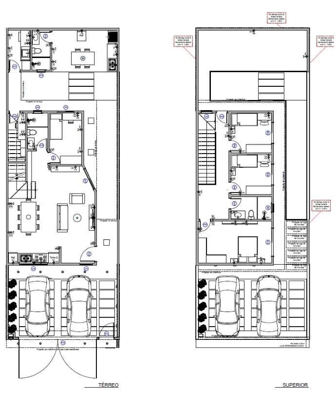
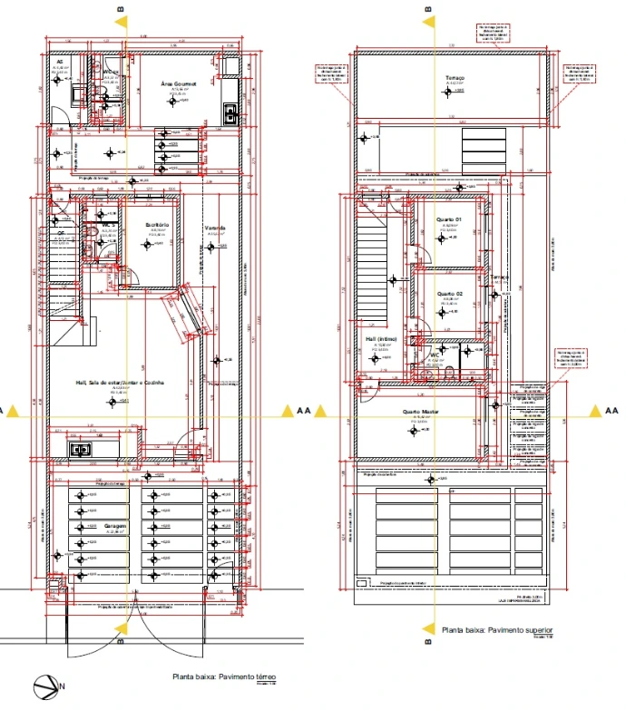
Conheça a Casa S009 em detalhes exclusivos. Este sobrado foi projetado para unir sofisticação e conforto, com ambientes amplos e bem iluminados.
A arquitetura desta casa foi criada parceira com cliente, proporcionando privacidade e integração. Cada ambiente prioriza o uso inteligente da luz natural e a conexão com as varandas, tornando cada momento único e especial.
Ambientes


