Espaço COOPEREMB
Apresentamos o projeto do novo Anexo de Convivência da COOPEREMB.
Localizado no bairro Jardim Souto, em São José dos Campos, este projeto nasce em um terreno de 300m² com características únicas.
O coração deste projeto é a integração: desenhamos uma passarela exclusiva que conecta a atual sede da empresa diretamente ao novo salão, facilitando o acesso e unindo o ambiente corporativo ao espaço de lazer.
O interior foi pensado para atender a todas as necessidades do colaborador. Teremos um amplo salão de festas equipado com churrasqueira, bancada com pia e mesas, ideal para as confraternizações. Mas também pensamos no dia a dia: o espaço contará com uma sala de descanso silenciosa e dois banheiros completos com chuveiros, oferecendo conforto total para quem precisa relaxar ou se arrumar após o trabalho.
É mais que uma construção; é um investimento no bem-estar dos colaboradores da cooperativa.
Marcos Nunes Pereira - Arquiteto.
O Projeto em imagens
Declive
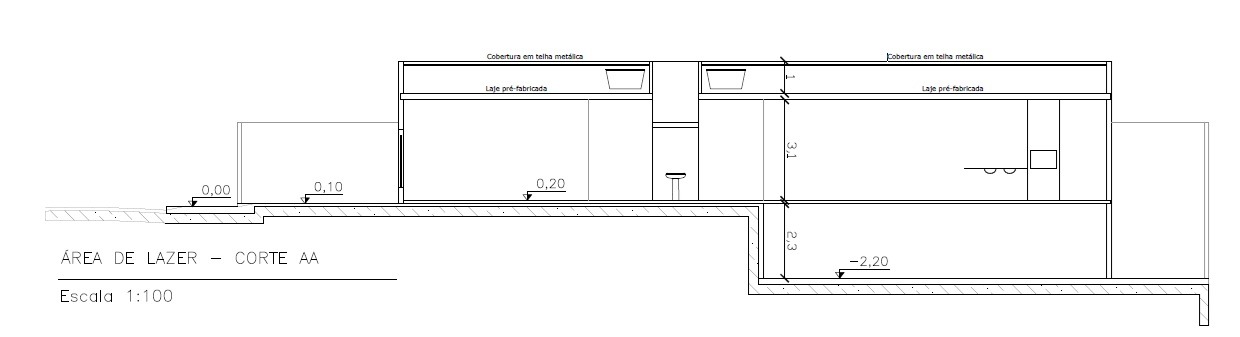
Um lote com 300m² (10x30) de área, em declive favoreceu o estudo deste projeto.
Salão imponente
Ao invés de ver o declive do terreno como um obstáculo, nós o utilizamos a nosso favor para criar uma arquitetura dinâmica e imponente.
Espaço de sobra
O salão construído em pilotis, permitiu utilização da área como estacionamento.
O projeto em pranchas



Espaço COOPEREMB
Pensado para o bem estar do colaboradores.
O projeto fotos da construção
Declive
Um lote com 300m² (10x30) de área, em declive favoreceu o estudo deste projeto. .
Salão imponente
Ao invés de ver o declive do terreno como um obstáculo, nós o utilizamos a nosso favor para criar uma arquitetura dinâmica e imponente.
Espaço de sobra
O salão construído em pilotis, permitiu utilização da área como estacionamento.
O inicio
Projeto e execução Sênior Arquitetura e Construção - Arquiteto responsável: Marcos Nunes Pereira - CAU A1855050
01

02

03

04
